|
|
 |
 |
 |
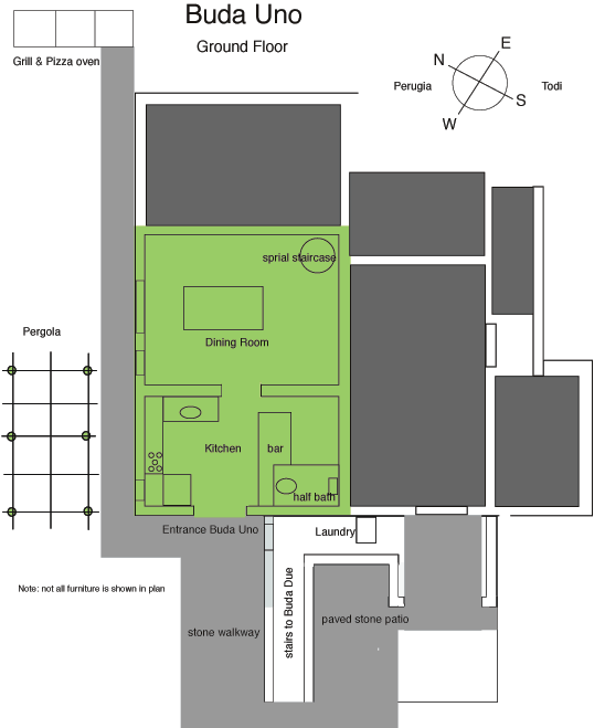
The kitchen of Buda Uno has a 5 burner gas Smeg stove, full size refrigerator with separate freezer, antique marble sink, dishwasher and San Marco professional coffee machine in the bar area and a half bath. There are beamed ceilings and antique tile floors and counters. We have decorated with antique farm implements, local ceramics and flea market finds and the kitchen library includes a full selection of cookbooks in English and Italian. |
|
|
|
|
|
|
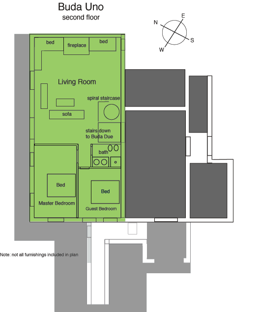
On the second floor, accessed by spiral staircase, is a large living room area, with TV, VCR/DVD, fireplace with two sleeping places. The living room set is B&B italia, downfilled and comfortable. Bedrooms are off the living room area (see below). Door here connects to Buda Due if guests want to rent both apartments.
The dining room of Buda Uno (above/right) has a long country table that seats up to 12 with direct access to pergola and garden area. |
|
|
Master bedroom(left): queen size bed, AC, views to the olive groves and valley.
Guest bedroom(right): either two single or a double bed, AC views of valley and double doors to bath and double antique doors in both lead to bath and living room. |
 |
|
|
 |
|
 |
|
View from the bedroom |
|
|
|
|
 |
|
Ready for some grilling |
|
|
return to top
|
| |
| |
|
return to top
|
 |
return to top |
|
|